1890.00
RUB
О товаре
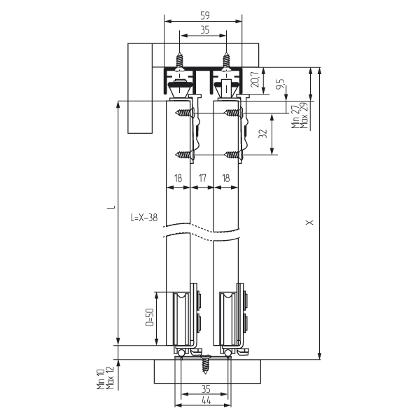
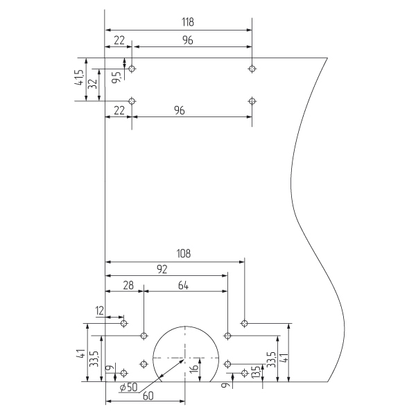
Система с нижним несущим механизмом для дверей весом до 80 кг. Комплект на одну дверь включает два нижних ролика на подшипниках с полиамидным покрытием, два верхних направляющих ролика с полиамидным покрытием и два верхних стопора. В данном комплекте уже в наличии комплектующие на 2 двери.
Основные
Артикул
ЦБ007862
Производитель
MEPA
Цвет
металлик
Свойства и материалы
Основной материал
металл
- КДМ осуществляет бесплатную доставку при заказе от 20000 ₽. Если сумма заказа меньше — доставка в вашем городе будет стоить 1500 ₽.
Обратите внимание: Доставка внутри ТТК - не осуществляется, за пределы МКАД - рассчитывается индивидуально.



